-->

Аналоги моноблоков SE RM6 и ABB SafeRing.

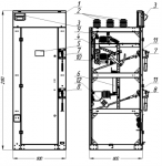
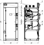
КРУ представляют собой комплектные распределительные устройства среднего напряжения с вакуумным выключателем на выкатом элементе, разделенные на изолированные отсеки, с дуговой защитой каждого отсека. В ячейках устанавливаются вакуумные выключатели VILDEN, измерительные трансформаторы тока и напряжения, цифровые защиты VILDEN или ведущих мировых производителей: Siemens, ABB, Schneider, Eaton.
Проведение комплектовки устройств распределительного типа 3-х фазного переменного тока, с частотой 50 герц в сети обеспечивается благодаря сборным камерам одностороннего обслуживания 366 и КСО 366м (малогабаритным).
Камеры серии КСО 366 имеют определенные пределы температуры воздуха.
Так, для них она должна быть от -20 ℃ до +35 ℃.
Уровень влажности также важен. КСО 366 монтируется в закрытом помещении, с уровнем влажности до 80%, и расположение должно быть на высоте не более одного километра над уровнем моря.
Помещения где могут присутствовать взрывоопасные газы и испарения, а также химически активные вещества не пригодны для использования камер КСО 366 и КСО 366м.
ООО "Вилден" – сертифицированный завод-изготовитель комплектных распределительных устройств (КРУ) и камер сборных одностороннего обслуживания (КСО) на напряжение 6-10 кВ. Мы предлагаем надежное оборудование для приема, распределения и защиты электроэнергии по конкурентным ценам. Работайте напрямую с производителем и получайте качественные решения без посредников!
Наша продукция соответствует ГОСТ и ПУЭ, обеспечивая безопасность и долговечность эксплуатации. Доставка осуществляется из Екатеринбурга по всей России.
• Промышленность: Заводы, фабрики, производственные линии;
• Коммерция: Торговые центры, офисные здания;
• Жилье: Многоквартирные дома и коттеджные поселки;
• Инфраструктура: Транспортные узлы, аэропорты, вокзалы.
КРУ и КСО 6-10 кВ идеально подходят для объектов с высокими требованиями к стабильности энергоснабжения.
• Собственное производство – полный контроль качества на всех этапах;
• Индивидуальный подход – подберем оборудование под ваш проект;
• Доступные цены – лучшие предложения от завода-изготовителя;
• Гарантия – на все устройства и сервисное обслуживание;
• Доставка по России – быстро и надежно из Екатеринбурга.
В каталоге представлены КРУ и КСО на 6-10 кВ для внутренних и наружных установок. Наши специалисты помогут выбрать оптимальное решение для вашего объекта!
Нужны надежные распределительные устройства? Свяжитесь с нами прямо сейчас! Оставьте заявку на сайте или позвоните – обеспечим ваш объект современным и безопасным оборудованием!
КТП (подстанции)
Электрощитовая продукция 0,4
Комплектное распределительное устройство 6 (10), 35кВ; ячейки КСО 6 (10)
Кабеленесущие системы (лотки)
Проволочные лотки
Аксессуары к лотку
Молниезащита и заземление
Светодиодные светильники
Светильники промышленные
Уличные и магистральные светильники
Светильники архитектурные
Дизель-генераторы (ДГУ)
Радиодетали
АСУ ТП
Отопительное оборудование
Блочно-модульные котельные и Тепловые пункты Vilden
Станции подачи-фильтрации тяжёлых видов топлива Vilden
Тепловые пункты
Системы шкафов Vilden CUBE (V3)
Приборы учета, контроля и измерения
Силовое оборудование
Вентиляционные установки
Инструмент
Изделия
Хомуты, клеммы, наконечники, разъемы изолированные, изолента, термоусаживаемая трубка, гильзы
Пускорегулирующая аппаратура
Корзина пуста